Kir Immobilien Logo

Raasdorf

Projektübersicht

Wohnen in Raasdorf – 14 moderne Doppelhaushälften mit Garten

An der direkten Grenze zu Wien entsteht in ruhiger Lage ein hochwertiges Wohnprojekt mit insgesamt 14 stilvollen Doppelhaushälften. Jede Einheit überzeugt mit durchdachten Grundrissen, 4,5 lichtdurchfluteten Zimmern, einer Wohnfläche von rund 110 m² sowie einem privaten Garten mit rund 130 m². Großzügige Terrassen laden zum Entspannen ein und schaffen fließende Übergänge zwischen Innen- und Außenbereich.

Die Verbindung aus modernem Wohnkomfort, familienfreundlicher Umgebung und unmittelbarer Stadtnähe macht dieses Projekt zum idealen Zuhause für alle, die Ruhe, Natur und die Nähe zu Wien perfekt kombinieren möchten.

Die Häuser

110 m²

Wohnfläche

4,5

Zimmer

⌀ 130 m²

Garten

399.000

Preis

Impressionen

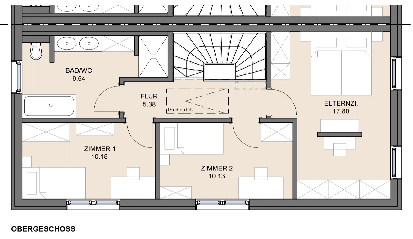
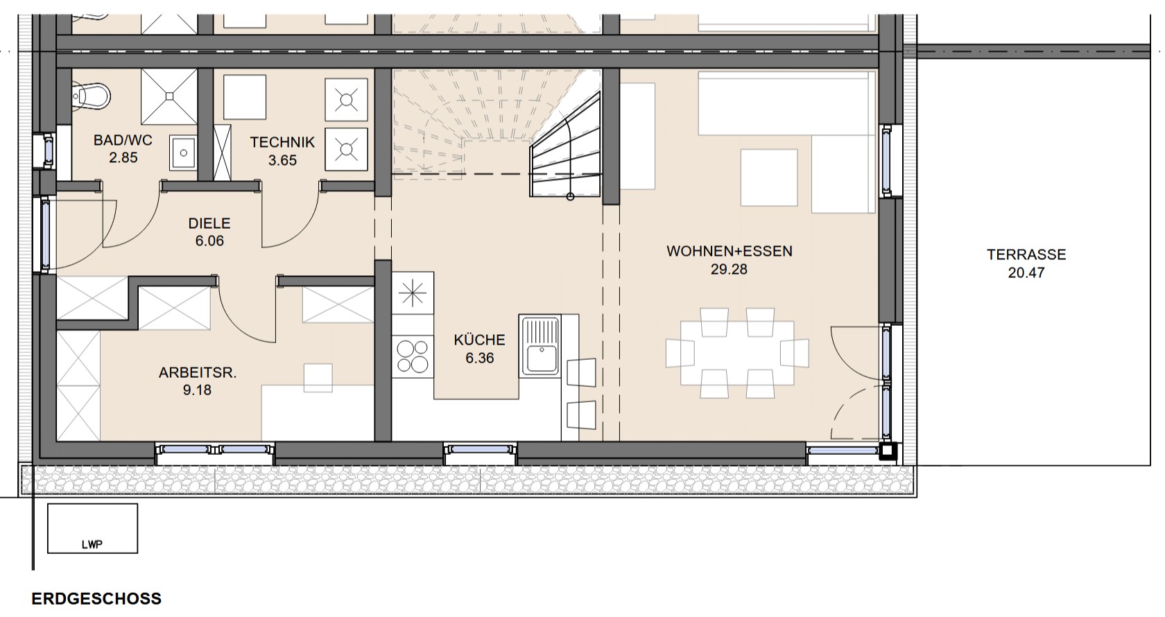
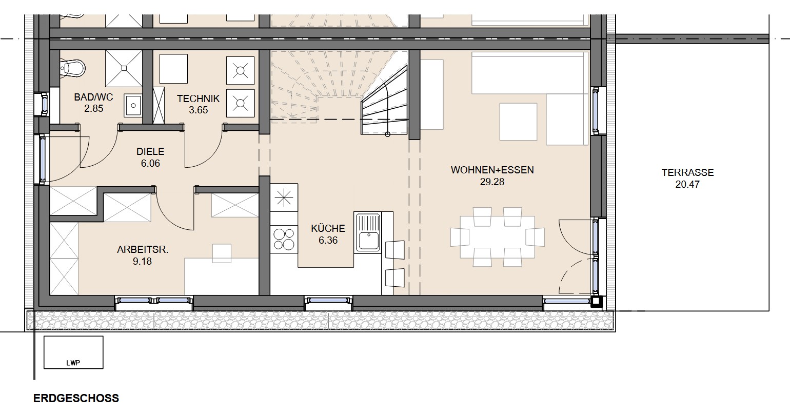
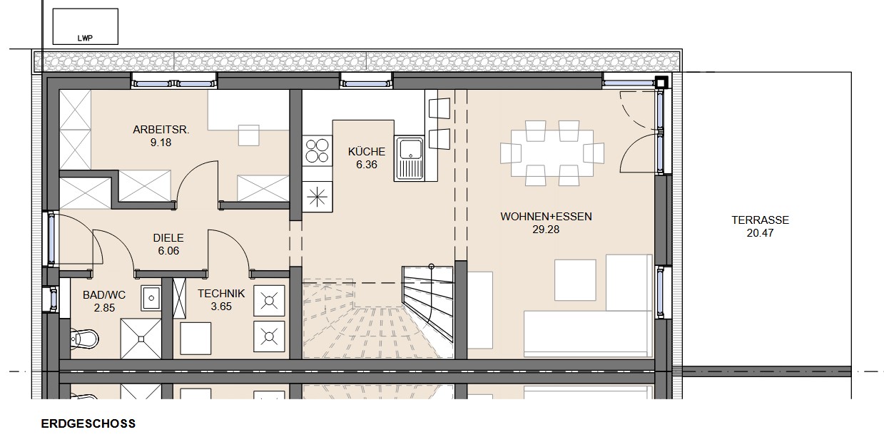
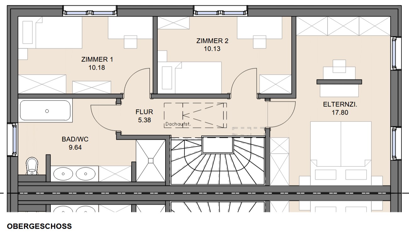
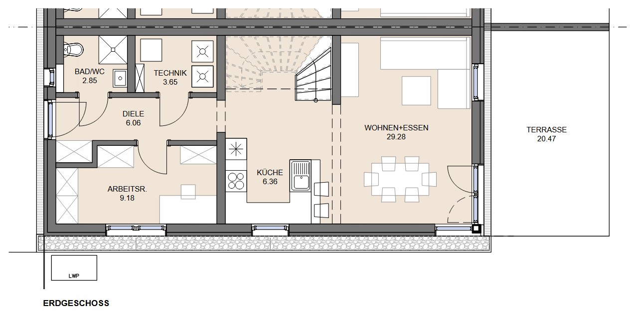
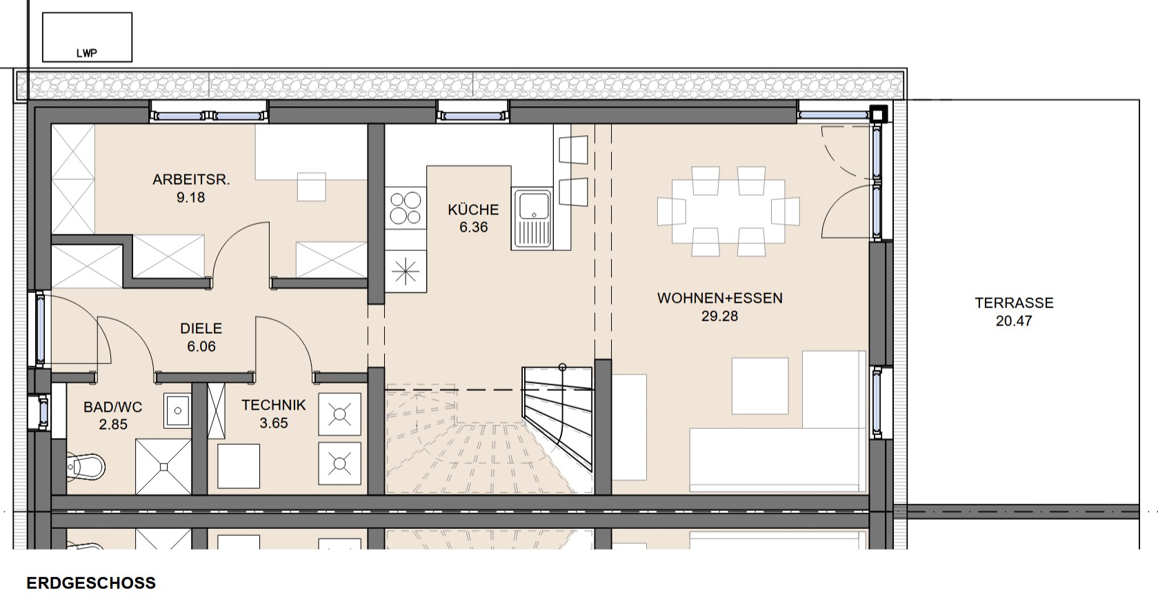
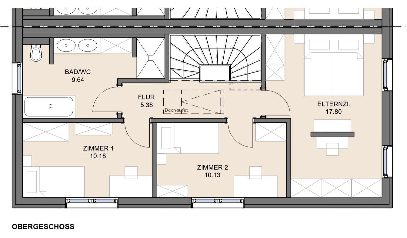
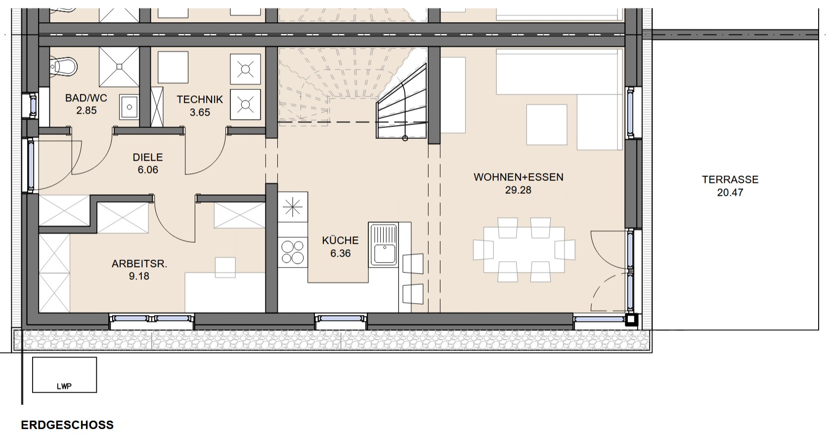
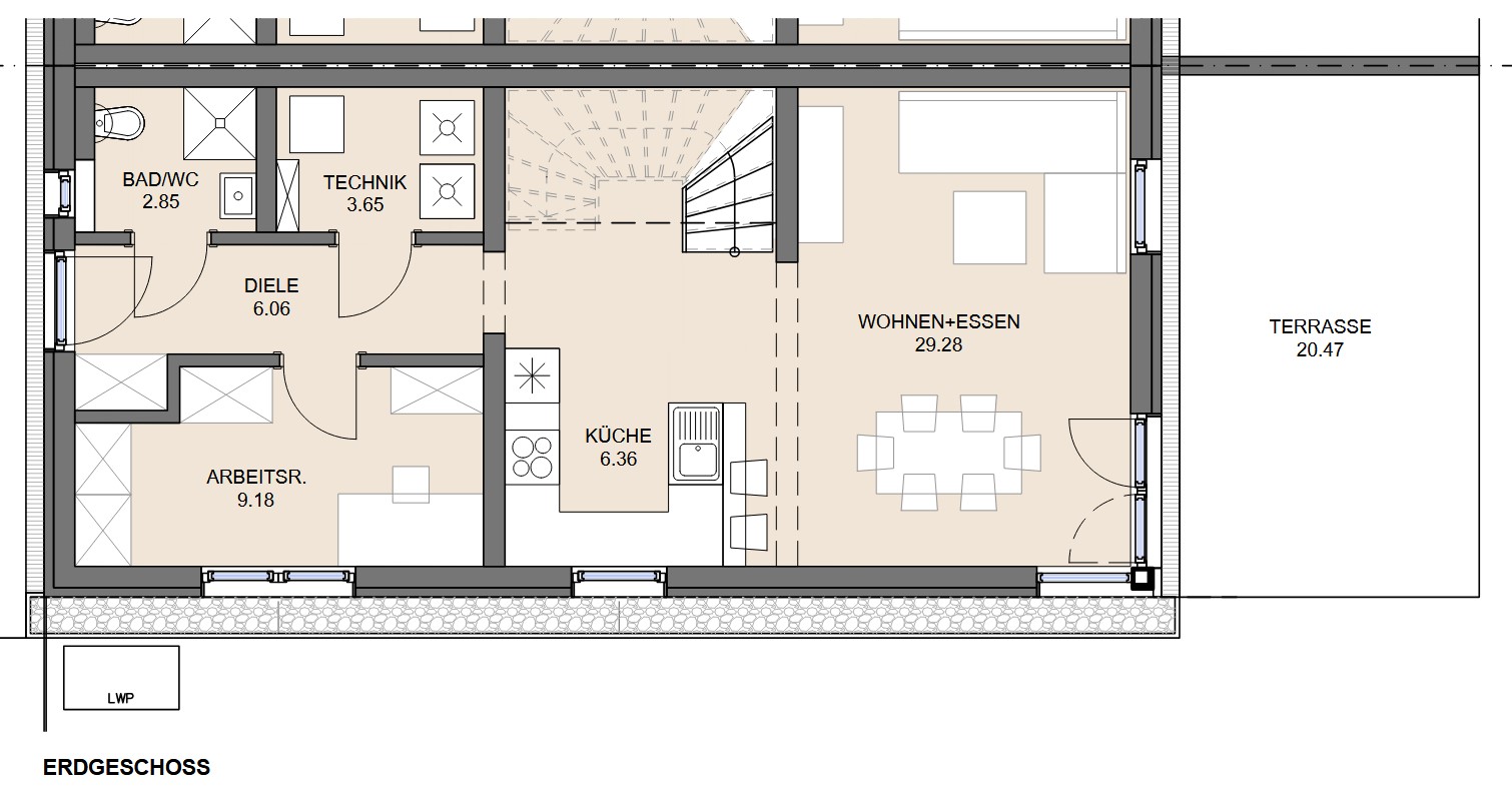
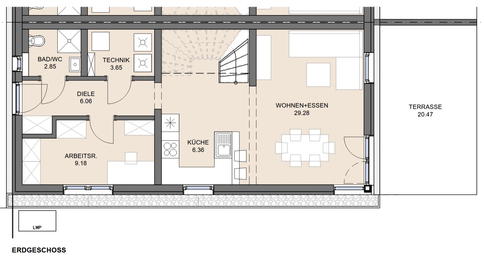
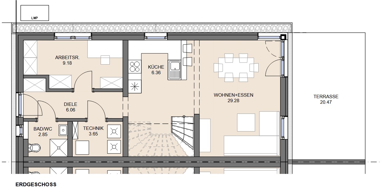
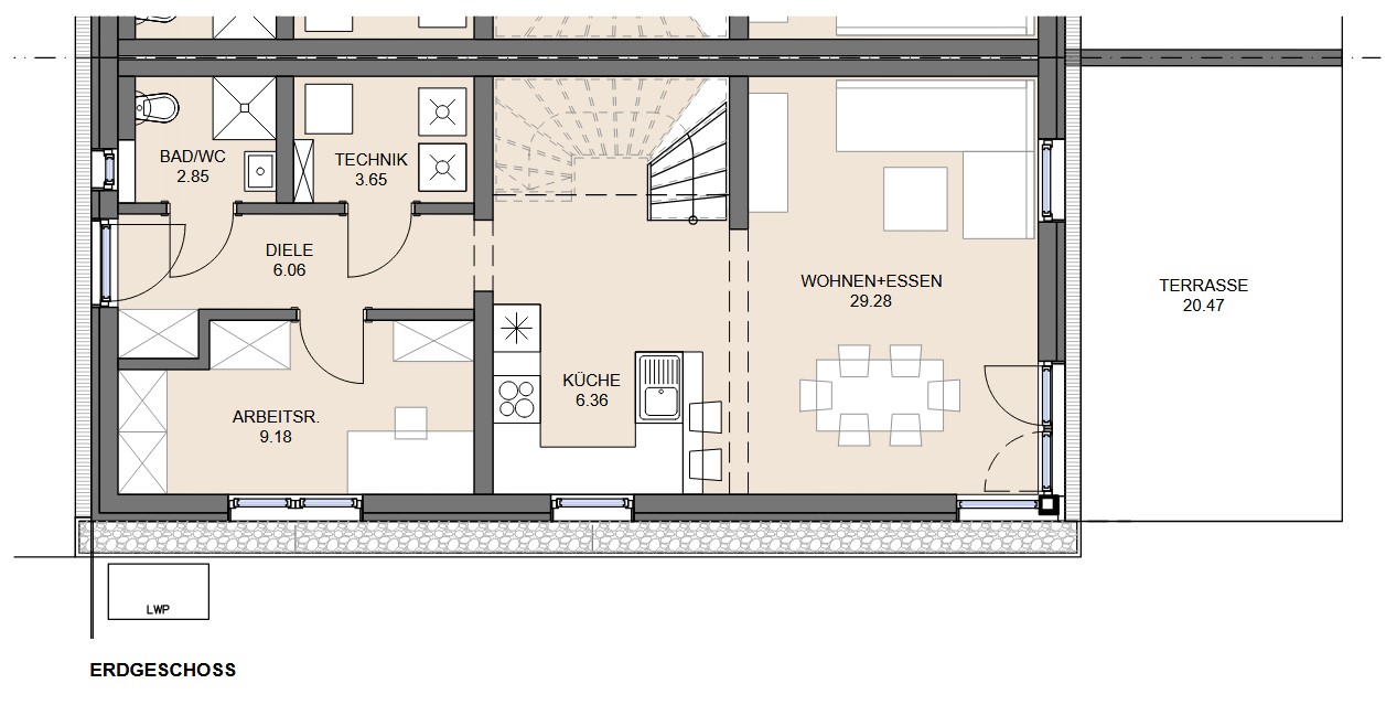
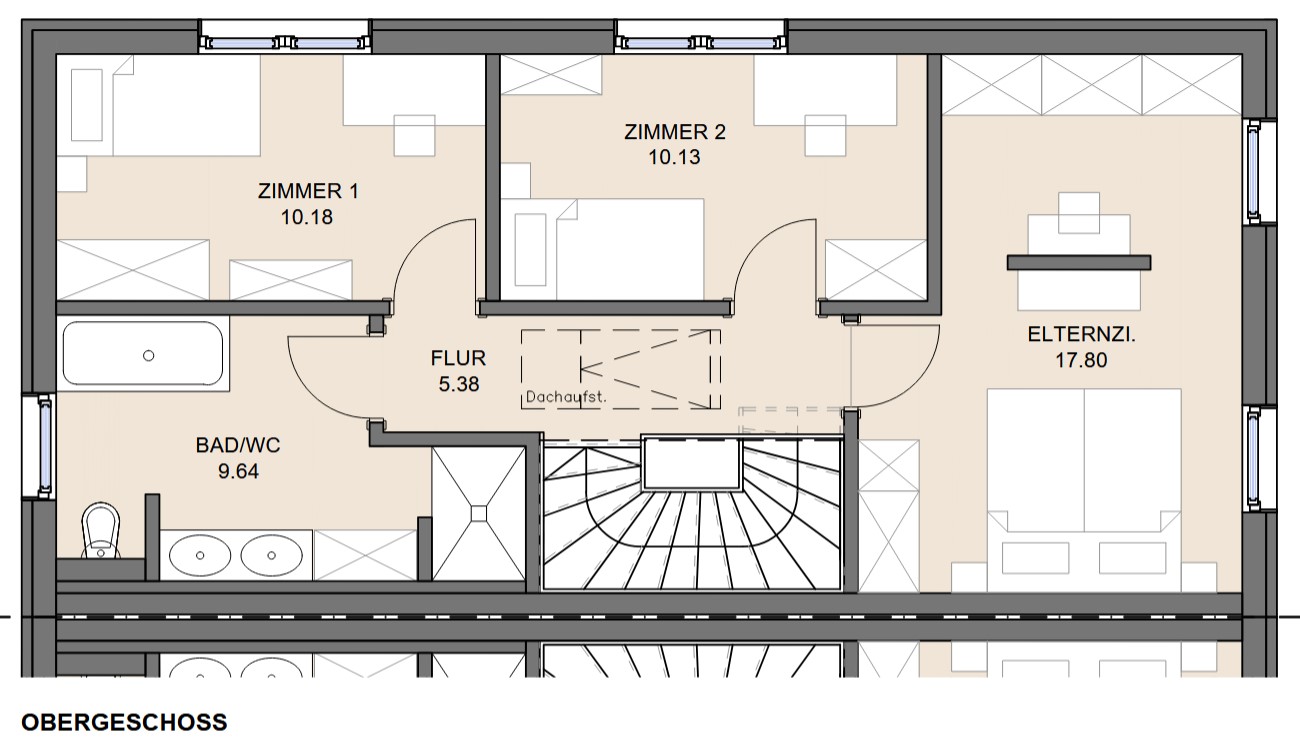
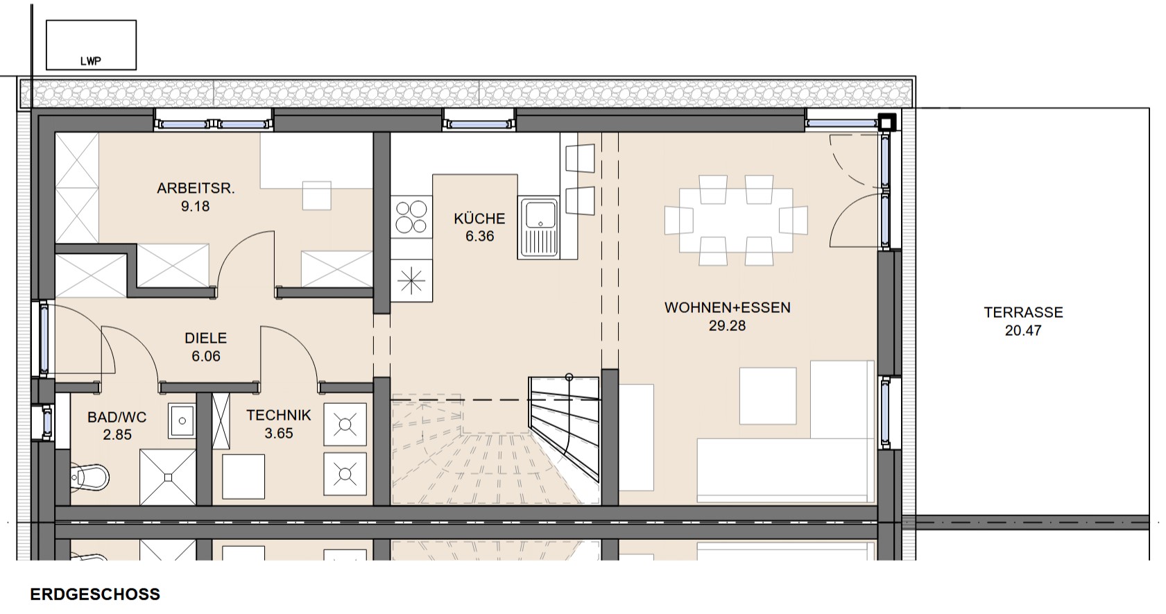
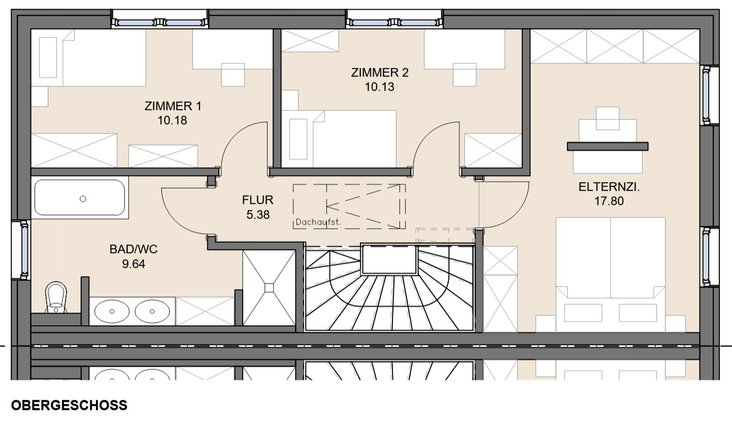
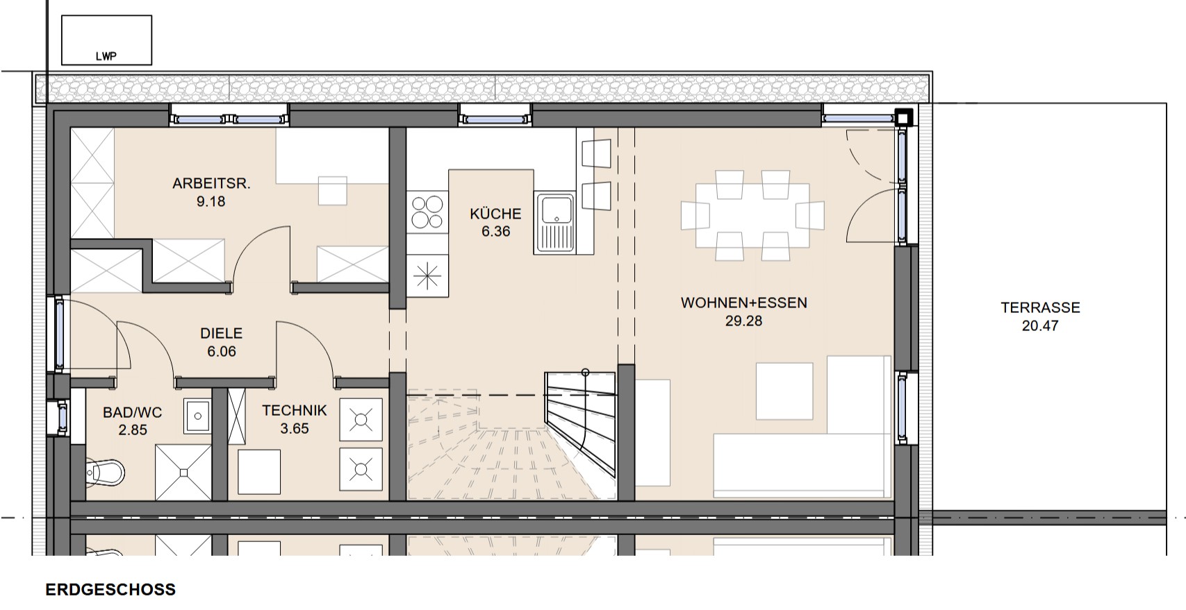
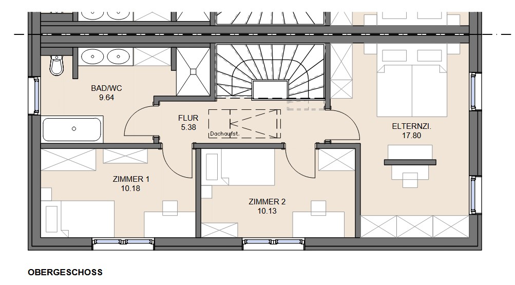
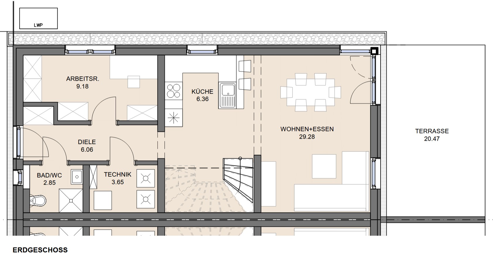
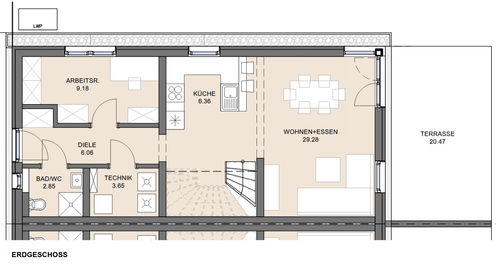
Die belagsfertigen Doppelhaushälften bieten 4,5 helle Zimmer, zwei Badezimmer mit Duschen und Badewanne sowie eine durchdachte Raumaufteilung – ideal für Familien, Paare und Homeoffice. Ein sonniger Garten und eine Terrasse erweitern den Wohnraum ins Freie. Ausgestattet mit einer effizienten Luftwärmepumpe und Fußbodenheizung, elektrischen Rollläden, dreifach verglasten Kunststoff-Alufenstern sowie Vorbereitungen für Klimaanlage, Photovoltaikanlage und E-Ladestation, erfüllt das Haus moderne Wohnansprüche. Zahlreiche Fenster sorgen für angenehmes Tageslicht in allen Räumen. Das optionale Schlüsselfertigpaket (€ 59.000,– brutto) umfasst unter anderem hochwertige Parkettböden und großformatige Feinsteinzeugfliesen. Die attraktive Baurechtslösung über 99 Jahre macht die Häuser zudem besonders finanzierfreundlich.

Lage & Anlage

Wohnen mit Lebensqualität in Raasdorf

Die Anlage entsteht in ruhiger, familienfreundlicher Lage in Raasdorf – einer charmanten Gemeinde direkt an der Stadtgrenze zu Wien. Umgeben von viel Grün bieten die 14 Doppelhaushälften ein naturnahes Wohngefühl mit gleichzeitig hervorragender Anbindung: Öffentliche Verkehrsmittel, Einkaufsmöglichkeiten, Schulen und Freizeitangebote sind in kurzer Zeit erreichbar. Die modern geplante Anlage überzeugt mit klarer Architektur, großzügigen Privatgärten von rund 130 m² und einer harmonischen Einbettung in die Umgebung. Hier trifft entspannte Nachbarschaft auf unmittelbare Stadtnähe – ideal für alle, die Natur, Ruhe und urbanen Komfort verbinden möchten.

Verfügbare Einheiten

Einige der 14 modernen Doppelhaushälften in Raasdorf sind noch verfügbar – jede mit ca. 110 m² Wohnfläche und einem großzügigen Garten von rund 130 m². Alle Einheiten verfügen über eine eigene Terrasse und bieten durchdachte Grundrisse mit 4,5 Zimmern sowie eine hochwertige Ausstattung. Ideal für Familien, Paare oder alle, die naturnah und gleichzeitig stadtnah wohnen möchten.
Kontaktieren Sie uns jetzt für eine unverbindliche Besichtigung oder weitere Informationen zu den noch freien Häusern.

Kir Immo Raasdorf Verkaufsplan 16b

Details

110 m²

Wohnfläche

4,5

Zimmer

⌀ 130 m²

Garten

399.000

Preis

Kir Immo Raasdorf Verkaufsplan 16b

Details

110 m²

Wohnfläche

4,5

Zimmer

⌀ 130 m²

Garten

399.000

Preis

Kir Immo Raasdorf Verkaufsplan 18a

Details

110 m²

Wohnfläche

4,5

Zimmer

⌀ 130 m²

Garten

399.000

Preis

Kir Immo Raasdorf Verkaufsplan 18b

Details

110 m²

Wohnfläche

4,5

Zimmer

⌀ 130 m²

Garten

399.000

Preis

Kir Immo Raasdorf Verkaufsplan 20a

Details

110 m²

Wohnfläche

4,5

Zimmer

⌀ 130 m²

Garten

399.000

Preis

Kir Immo Raasdorf Verkaufsplan 20b

Details

110 m²

Wohnfläche

4,5

Zimmer

⌀ 130 m²

Garten

399.000

Preis

Kir Immo Raasdorf Verkaufsplan 22a

Details

110 m²

Wohnfläche

4,5

Zimmer

⌀ 130 m²

Garten

399.000

Preis

Kir Immo Raasdorf Verkaufsplan 22b

Details

110 m²

Wohnfläche

4,5

Zimmer

⌀ 130 m²

Garten

399.000

Preis

Kir Immo Raasdorf Verkaufsplan 24a

Details

110 m²

Wohnfläche

4,5

Zimmer

⌀ 130 m²

Garten

399.000

Preis

Kir Immo Raasdorf Verkaufsplan 24b

Details

110 m²

Wohnfläche

4,5

Zimmer

⌀ 130 m²

Garten

399.000

Preis

Kir Immo Raasdorf Verkaufsplan 26a

Details

110 m²

Wohnfläche

4,5

Zimmer

⌀ 130 m²

Garten

399.000

Preis

Kir Immo Raasdorf Verkaufsplan 26b

Details

110 m²

Wohnfläche

4,5

Zimmer

⌀ 130 m²

Garten

399.000

Preis

Kir Immo Raasdorf Verkaufsplan 28a

Details

110 m²

Wohnfläche

4,5

Zimmer

⌀ 130 m²

Garten

399.000

Preis

RAAS_Verkaufsplaene_260220-H14_28b

Details

110 m²

Wohnfläche

4,5

Zimmer

⌀ 130 m²

Garten

399.000

Preis

Vertriebspartner

Phil & Partner ist exklusiver Vertriebspartner.

Kontaktieren Sie uns

Weitere Projekte

Jedes unserer Projekte steht für das, was uns wichtig ist: klare Architektur, sinnvolle Grundrisse und nachhaltige Qualität, die sich unsere Kundinnen und Kunden leisten können – und auch leisten wollen.

Werfen Sie einen Blick auf unsere aktuellen Projekte und entdecken Sie, wie durchdachter Wohnraum in der Praxis aussieht. Vielleicht ist auch Ihr neues Zuhause schon dabei.

Haus mit Garten in Brunn am Gebirge
ab €799.000

Brunn am Gebirge

Attraktivste Lage und modernste Ausstattung treffen auf Geschmack und Qualität.

Häuser

ab 110m²

4 Zimmer

in Bau

ab €459.000

Mistelbach

Moderne Wohnqualität und großzügige Privatgärten treffen auf Kleinstadtflair und beste Anbindung.

Häuser

ab 120m²

4,5 Zimmer

in Planung

ab €459.000

Orth a.d. Donau

Ländliche Ruhe und naturnahe Umgebung treffen auf moderne Bauweise und großzügige Freiflächen.

Häuser

ab 120m²

4,5 Zimmer

in Planung

Vertriebspartner

Phil & Partner ist exklusiver Vertriebspartner.

Phil_Partner_Logo_Final

Leben, wo andere entspannen

Kontakt